Kundenreferenz Kreiswerke Main-Kinzig
Kundenreferenz Kreiswerke Main-Kinzig

Von Daten zu Prozessen

Die Kreiswerke Main-Kinzig GmbH steigern ihre Effizienz durch konsequente Digitalisierung und Software von MuM

Einen Wissensspeicher wollten die Kreiswerke Main-Kinzig GmbH vor 20 Jahren schaffen und entschieden sich für ein geografisches Informationssystem (GIS). Inzwischen unterstützt die auf MapEdit basierende Lösung viele Prozesse und stellt Daten für automatisierte Abläufe bereit. Weitere Softwarelösungen von MuM machen die Informationen auch externen Partnern und den Bürgerinnen und  Bürgern des Versorgungsgebiets zugänglich.
Kundenreferenz Kreiswerke Main-Kinzig
Timo Gottschalk, Geschäftsbereichsleiter Netze bei den Kreiswerken Main-Kinzig, schätzt Kontinuität und  Innovationskraft bei MuM. „MapEdit von MuM ist bei uns allgegenwärtig".
Wissen in den Köpfen von Mitarbeitenden ist ein flüchtiges Gut. Als bei den Kreiswerken Main-Kinzig Anfang des 21. Jahrhunderts der Geschäftsbereichsleiter Netze in Pension ging, regte er deshalb an, dass seine Nachfolger die Daten des Stromnetzes zusammenführten und konsolidierten. Die Verantwortlichen entschieden sich damals im Rahmen einer Ausschreibung für eine Software, dessen Entwickler- und Berater-Team später in den MuM-Konzern eintrat. Hier wurde das Nachfolgeprodukt MuM MapEdit entwickelt, das die Kreiswerke heute einsetzen. MuM MapEdit ist eine komplette Neuentwicklung, die funktionale Ähnlichkeiten mit der alten Software aufweist, aber durch aktuelle Technologie überzeugt. „Obwohl die Software seither mehrfach Eigentümer und Namen gewechselt hat, erleben wir Kontinuität“, erzählt Timo Gottschalk, der heute den Geschäftsbereich Netze leitet. „Viele Mitarbeiterinnen und Mitarbeiter, die wir aus der Anfangszeit kennen, sind heute noch unsere Gesprächspartner.“

Bedeutender regionaler Versorger

Diese Kontinuität trägt dazu bei, dass die Daten und Prozesse der Kreiswerke Main-Kinzig auch heute sicher und aktuell sind. Das Versorgungsunternehmen mit Sitz in Gelnhausen beschäftigt mehr als 200 Menschen. Es versorgt über 125.000 Menschen auf einer Fläche von rund 250 km2 mit Trinkwasser und rund 100.000 Menschen auf einer Fläche von rund 660 km2 mit Strom. Seit 2012 liefern die Kreiswerke auch Gas in die Haushalte. Das heutige GIS wird in den Sparten Strom, Wasser und Breitband genutzt.

MapEdit als Datendrehscheibe

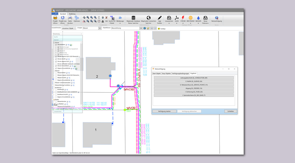
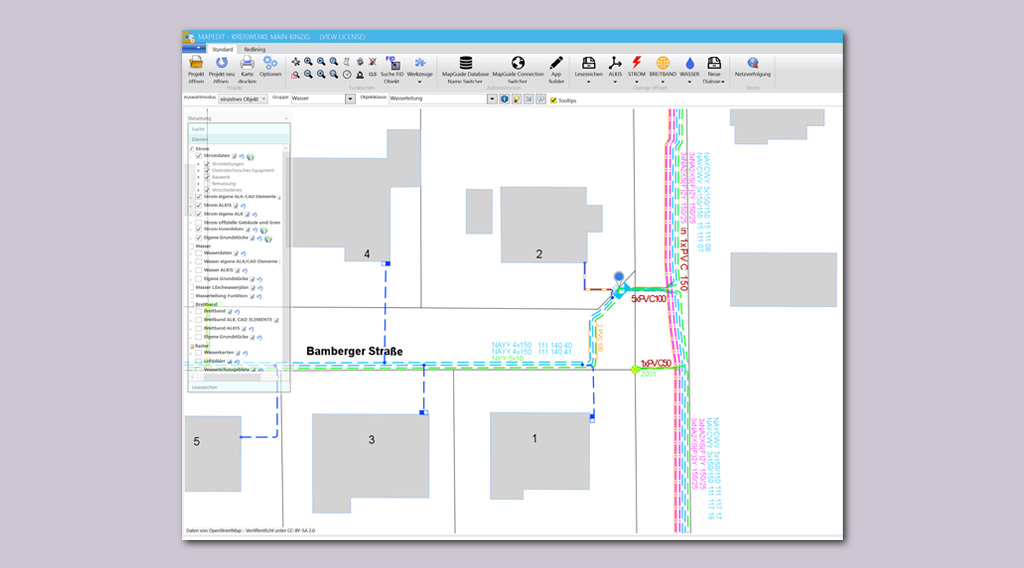
MuM MapEdit stellt Kartenmaterial, Stamm-, Sach- und Betriebsmitteldaten allen Mitarbeitenden zur Verfügung, die diese Informationen brauchen. Dank Schnittstellen zu angeschlossenen Systemen müssen Daten nur an einer Stelle erfasst und gepflegt werden. Dadurch ist eine „beliebte“ Fehlerquelle ausgeschaltet. Wichtige Schnittstellen bestehen zu NEPLAN für die Berechnung von Stromnetzen und zum Workforce-Managementsystem SLT, das die Einsätze von Monteuren steuert.

Mit dem Tablet-PC vor Ort

„MapEdit von MuM ist bei uns allgegenwärtig“, sagt Timo Gottschalk. Das gilt für die Büroarbeitsplätze, wo Daten gepflegt oder themenbezogen abgefragt werden, aber auch immer öfter für die Monteure vor Ort. Diese sind inzwischen mit Tablet-PCs ausgestattet. Darüber erhalten sie ihre Arbeitsaufträge und haben per MapEdit Mobile Zugriff auf alle im GIS gespeicherten Daten. Insbesondere sehen sie die exakte Position ihres Arbeitsortes und können feststellen, was genau sie dort vorfinden. So werden sie schnell zu ihrem Ziel geleitet und wissen, welches Material sie mitnehmen müssen. Außerdem können sie die erledigten Arbeiten vor Ort erfassen, so dass die Informationen im System quasi in Echtzeit aktuell gehalten werden. Im Projektstatus befindet sich auch eine weitere Maßnahme, die Veränderungen von Sachdaten direkt vor Ort ermöglichen soll.

Unabhängig vom Internet

Der nächste wichtige Schritt für die Monteure ist die Installation der App-Version von MapEdit Mobile. Die App mit exakt den gleichen Funktionen und natürlich dem sicheren Log-In ins zentrale Netzwerk speichert nämlich die nötigen Daten im Cache. Dadurch können die Monteure Daten auch dort, wo keine Internetverbindung besteht, abfragen und aktualisieren. Sobald der Tablet-PC wieder eine Verbindung zum Internet hat, synchronisiert die Software die Daten automatisch.

Auskünfte für Partnerunternehmen

Doch nicht nur Monteure nutzen die GIS-Daten schnell, einfach und sicher: Die Kreiswerke Main-Kinzig versorgen auch externe Firmen wie Bauunternehmen, Planungsbüros und andere Vertragspartner mit aktuellen Informationen aus der Datenbank. Die Büros müssen sich einmal registrieren und erhalten nach der Freischaltung Zugriff auf die vorhandenen Plandaten. Bauunternehmen können beispielsweise vor jeder Baumaßnahme einen aktuellen Plan abrufen, der zeigt, welche Leitungen dort verlegt sind, wo die Baumaßnahme geplant ist. Damit sinkt das Risiko, dass ein Bagger eine Wasser- oder Stromleitung durchtrennt.

Rechtssicherheit

Die Software, die den gesamten Ablauf steuert und die angeforderten Pläne aufbereitet, heißt „Planauskunft“ und ist ebenfalls ein MuM-Produkt. „Planauskunft sorgt für Sicherheit“, erklärt Timo Gottschalk. Die Software stellt nämlich nicht nur die angefragten Daten zur Verfügung, sondern dokumentiert auch jede Anfrage und jeden Planabruf. Die Kreiswerke können auf diese Weise sicher belegen, ob und wann ein Bauunternehmen Informationen abgefragt und erhalten hat.

Informationsplattform für alle

Neben der erwähnten App-Version von MapEdit Mobile werden die Kreiswerke schon bald das MapEdit Portal in Betrieb nehmen. Damit haben jede Bürgerin und jeder Bürger per Internet Zugriff auf bestimmte Daten des Versorgers. Im ersten Schritt werden z. B. Elektrotankstellen für Elektroautos und E-Bikes, Kontaktdaten von Installateuren im Versorgungsunternehmen und Straßenbeleuchtungsanlagen als „Objekte“ übers Web zur Verfügung gestellt; weitere Bereiche sind denkbar. Dass GIS für Versorgungsunternehmen unverzichtbar ist, steht für Timo Gottschalk außer Frage. Für ihn ist entscheidend, dass man die Daten nicht nur in Echtzeit aktuell hält, sondern dass man sie auch nutzt, um Prozesse zu automatisieren und zu vereinfachen. MapEdit und die angeschlossenen Softwarelösungen sind für ihn und seine Kolleginnen und Kollegen auch deshalb so interessant, weil man viel selbst konfigurieren kann. „MuM ist stets bereit, weiterzudenken. Das Stuttgarter Team geht auf unsere Anforderungen ein und entwickelt Lösungen partnerschaftlich weiter“, sagt Timo Gottschalk.
Referenz Kreiswerke Main-Kinzig
Referenz Kreiswerke Main-Kinzig
Referenz Kreiswerke Main-Kinzig
Referenz Kreiswerke Main-Kinzig
Referenz Kreiswerke Main-Kinzig
Referenz Kreiswerke Main-Kinzig
Referenz Kreiswerke Main-Kinzig