Referenzdetailseite Matthäus Schmid Bauunternehmen GmbH
Referenzdetailseite Matthäus Schmid Bauunternehmen GmbH

Digitaler Dreikant

Die Matthäus Schmid Bauunternehmen GmbH hat vielfältige Einsatzmöglichkeiten für den MuM QTO Booster gefunden

Kostenschätzungen, Massenermittlung, Aufmaß- und Rechnungsprüfung, Flächenermittlung, Berechnung von Boden- und Deckenspiegeln machen richtig Spaß, seit die Matthäus Schmid Bauunternehmen GmbH vor rund zehn Monaten auf den MuM QTO* Booster umgestiegen ist. Auch, weil die Ergebnisse perfekt dokumentiert und nachvollziehbar sind.
„2D-Zeichnungen sind in unserem Geschäft noch gang und gäbe“, erzählt Christian Schmid, der gemeinsam mit seinen beiden Brüdern die Matthäus Schmid Bauunternehmen GmbH im schwäbischen Baltringen in zweiter Generation führt. Das Unternehmen ist in allen Sparten des Baus zu Hause: schlüsselfertiges Bauen, Hochbau, Brücken- und Ingenieurbau, Holz- und Stahlbau. Mit dem Angebot des schlüsselfertigen Bauens gehörte das Unternehmen in den späten 60er Jahren zu den Branchenpionieren. Diesen Pioniergeist zeigt es auch heute – vor allem bei der Digitalisierung. Wer dabei an Building Information Modeling (BIM) denkt, hat nicht ganz unrecht. Schließlich hat Matthäus Schmid 2016 den BIM Award in der Kategorie „Besondere Bauten“ gewonnen.

Der richtige Partner auch für 2D

Doch BIM ist nicht alles. Bei mehr als 60% der Projekte liegen, zumindest zum Projektstart, nur 2D-Pläne vor, aus denen die Mitarbeitenden in der Kalkulation ein nachvollziehbares Aufmaß für die folgenden Prozesse entwickeln müssen. Autodesk hatte eine Software für diese Aufgaben im Angebot, die aber schon vor geraumer Zeit abgekündigt worden war. „Wir haben händeringend nach einer neuen Lösung gesucht“, erzählt Christian Schmid. „Da kam es uns sehr gelegen, dass MuM den QTO Booster auf den Markt brachte. Wir waren nach guten Erfahrungen mit MuM als BIM-Partner sicher, dass auch eine 2D-Kalkulationssoftware dieses Anbieters zuverlässig funktionieren würde.“
Die Erwartungen wurden übertroffen. „Die Software ’denkt‘ wie unser altes Programm“, sagt Thomas Riedmann, der in der Planungsabteilung schlüsselfertiges Bauen täglich mit dem QTO Booster arbeitet. Acht Mitarbeiterinnen und Mitarbeiter wurden bei MuM ausgebildet und nutzen die Software beinahe täglich. Auch die Bauleiter verwenden sie gelegentlich, so dass die sechs Netzlizenzen fast ständig in Gebrauch sind.
Referenzdetailseite Matthäus Schmid Bauunternehmen GmbH
Die Schmids sind stolz auf den BIM-Award (vlnr. Christian Schmid, Fridolin Schmid, Wirtschaftsministerin (BW) Dr. Nicole Hoffmeister-Kraut, Matthäus Schmid, Felix Schmid). Dennoch führt kein Weg an den schnellen Berechnungen aus 2D-Zeichnungen mit dem MuM QTO Booster vorbei.
Referenzdetailseite Matthäus Schmid Bauunternehmen GmbH
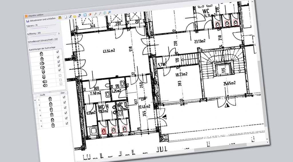
Der QTO Booster zählt sogar Objekte in Bilddaten: Der Nutzer legt eine ”Suchvorlage” fest, und die Software legt los.

Zählen leicht gemacht

Der MuM QTO Booster hat das klassische Handwerkszeug der Kalkulatoren in digitale Tools verwandelt: Der elektronische Dreikant misst präzise; elektronische Markierstifte zeigen an, welche Bauteile schon in die Kalkulation übernommen wurden. Dabei nimmt die Software den Kalkulatoren sogar das „Abhaken“ ab, indem sie gleichartige Formen, z. B. Lampen, Waschbecken oder Heizkörper im Plan identifiziert und zählt.
 
Zu den ganz großen Vereinfachungen gehört jedoch der allererste Schritt: Egal, ob der Plan digital oder auf Papier vorliegt und erst gescannt werden muss – der MuM QTO Booster ermöglicht, den Plan zu kalibrieren. Das stellt sicher, dass alle gemessenen Längen korrekt sind und Flächen und Kubaturen richtig berechnet werden.

Sicher kalkulieren

Nützlich ist auch die „Quasi-3D-Funktion“: Dabei erzeugt die Software anhand der Höheneingaben Flächen, z. B. Wände, die am Beginn und Ende unterschiedlich hoch sind, stellt sie visuell dar und ermittelt den exakten Flächeninhalt. Mit Hilfe der Vielzahl an Unterpositionen kann man Fassaden, die auf dem Plan als eine einheitliche Fläche zu sehen sind, detaillieren.
 
Von dort ist es nur ein kleiner Schritt zur Kalkulation. „Wir haben eigene Kataloge erstellt, um die ermittelten Mengen automatisiert zu ’bepreisen‘“, erzählt Christian Schmid. Für eine schnelle Kostenschätzung bzw. Vorkalkulation arbeitet man mit einer Vorlage nach Nutzungsbereichen (z. B. Erschließung, Treppenhäuser, Sanitärräume, Büroräume, Schächte). Bei der erwähnten, per Zeichnungsfunktion detaillierten Fassade war der Katalog deutlich komplexer: Hier wurden nicht nur die einzelnen Fassadenelemente, sondern die exakten Mengen für Pfosten- und Riegelprofile, Dichtungen, Deckenleisten, Jalousien, Motoren usw. gezählt und berechnet.
Referenzdetailseite Matthäus Schmid Bauunternehmen GmbH
Referenzdetailseite Matthäus Schmid Bauunternehmen GmbH

Vielseitig einsetzbar

Die Matthäus Schmid GmbH setzt den MuM QTO Booster für viele Aufgaben ein: Schnelle Kostenschätzung mit dem Einheitspreis- Katalog, detaillierte Massenermittlung für Ausschreibungen, Prüfen der Rechnungen von Subunternehmern durch Vergleich mit dem Aufmaß, Flächenberechnung bei der Projektentwicklung. Christian Schmid erinnert sich an eine nur scheinbar schwierige Anfrage: Es galt zu prüfen, wie viele Quadratmeter einer Heizkühldecke tatsächlich heizen bzw. kühlen. Auslässe für Lampen, Lüftung usw. mussten daher von der Gesamtfläche abgezogen werden. „Wir haben einfach den Deckenspiegel eingelesen und die Auslässe markiert, und schon hatten wir ein exaktes Ergebnis“, sagt Verena Koch. „So macht Arbeiten Spaß.“

Nachvollziehbare Dokumentation

Das Arbeiten für die Kalkulatoren ist mit dem MuM QTO Booster einfacher und sicherer geworden. Dank der Netzlizenz hat sich die Zahl der Nutzer im Unternehmen deutlich erhöht. Entscheidend für die Geschäftsführung sind jedoch die strategischen Vorteile: Die digitale Verknüpfung von Plan und Auswertung schafft Sicherheit und Transparenz. Neue Versionen der Pläne lassen sich leicht bearbeiten – man muss nicht immer ganz von vorn anfangen. Bauherren und Projektpartner profitieren von gesicherten Mengen und Preisen und von einer nachvollziehbaren Dokumentation. Christian Schmid ist sicher: „Wir haben auf das richtige Tool und den richtigen Partner gesetzt.“
Referenzdetailseite Matthäus Schmid Bauunternehmen GmbH
Der QTO Booster berechnet Flächen exakt und nachvollziehbar: Der Rechenweg ist stets ersichtlich.
  
* QTO (Quantity take-off) bezeichnet das Aufmaß von Längen, Flächen und Volumina.